
Если в вашей голове созрел план создания ресторана, кроме этого, вы приложили определенные усилия для его практической реализации, значит, все получится, если учесть еще некоторые полезные рекомендации.
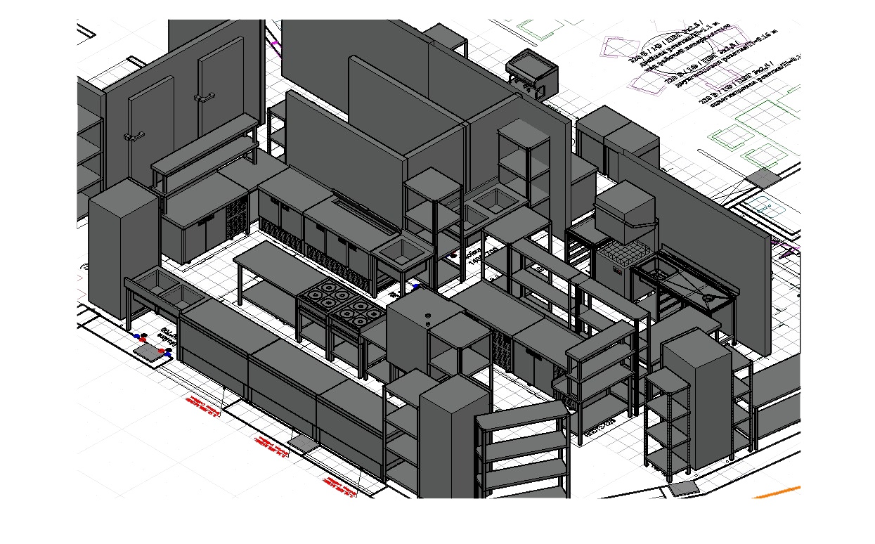
Если вы уже присмотрели пространство, в котором будет организован ресторан, придумали, какой внешний дизайн будет сопровождать его впоследствии, осталось обратить внимание на технологическое проектирование, включающее подбор мебели и оборудования, оптимально сориентированного для конкретного заведения. Начинающие рестораторы иногда допускают серьезные ошибки, полагая, что при внутреннем оформлении заведения следует приложить максимально сил для создания интересного дизайна. Действительно, внутренний дизайн будет магнетически привлекать посетителей, но в приоритете все же должно находиться специальное оборудование, обеспечивающее приготовление качественной вкусной пищи. По этой причине первоначально следует разработать проект технологического оснащения.
Проект технологического оснащения включает в себя:
● спецификацию технологического оборудования;
● план его оптимального размещения;
● план его технической привязки к электросистемам и коммуникациям (вентиляции, водоснабжению, канализации).
При разработке технологического проекта можно столкнуться с различными вариантами размещения оборудования, что позволит провести конструктивное обсуждение, результатом которого станет оптимальный вариант, благоприятствующий успешному функционированию ресторана. Технологический проект должны выполнять только специалисты отделов технологического проектирования, имеющие достаточный практический опыт в этом направлении. Это позволит учесть даже мельчайшие и незаметные для новичков детали.
Проектная документация создается с применением специального программного обеспечения, среди которого выделяются ArchiCad или AutoCad. Опытные проектировщики не только обеспечат соблюдение строительных норм и правил, требований пожарной безопасности, санэпидемстанций, но и учтут все юридические тонкости. Опытный проектировщик учитывает все режимные моменты, с которыми в процессе функционирования ресторана придется сталкиваться персоналу заведения.
При составлении проекта будут учтены зоны приема товара, направления движения посетителей, а также официантов. Если все эти направления не будут иметь точек пересечения, эффективность функционирования ресторана будет высокой. Посетители ресторана обращают внимание на его внешний вид, но больше всего их интересует качество приготовления блюд, что зависит во многом от того, какое оборудование будет подобрано и правильно размещено на кухне.
Однако кухонное оборудование зависит, прежде всего, от того, какое меню предполагается впоследствии презентовать посетителям. Определившись с таким меню, можно выбирать кухонное оборудование. В частности, приобретая пароконвекторы, возникает возможность приготовления разнообразных блюд. При выборе технологического оборудования важно обратить внимание на его эксплуатационные характеристики, чтобы быть уверенным в его продолжительном использовании. Также предпочтение лучше отдавать оборудованию, управлять которым достаточно просто, в этом случае сотрудники не будут сталкиваться с серьезными проблемами при его эксплуатации. Безусловно, существует современное оборудование, наделенное удивительными многофункциональными возможностями, но при этом их управление заключается в большом количестве кнопок и регуляторов. В этом случае лучше уточнить у персонала, насколько они ориентированы на такое оборудование, смогут ли они выполнять качественно и быстро все режимные моменты, используя такое оборудование. Если персонал соглашается, значит, можно приобретать, если нет, то лучше обратить внимание на простые модели. Чтобы внутреннее пространство вызывало удивление, восхищение, важно создать соответствующий дизайн. Однако справиться с такими задачами смогут только профессиональные дизайнеры, поэтому лучше всего на них переориентировать такие работы. При создании технологического проекта важно учитывать мнение не только собственника ресторана и дизайнера. Немаловажно учесть мнение, изучить видения тех, кто является потенциальным посетителем ресторана. Составление технологического проекта ресторана – не удел самоучек. Важно, чтобы эту работу выполняла фирма, имеющая лицензию на оказание такого вида услуг. Осуществлять деятельность без наличия технологического проекта невозможно. Любой контролирующий орган при выявлении такого факта наложит запрет на предпринимательскую деятельность, запретит ресторану функционировать.
Хороший проектировщик обязательно учтет все операционные процессы: от приемки продуктов до движения персонала и гостей. Правильная организация этих потоков без пересечений значительно повысит эффективность работы заведения.
Гости, безусловно, оценят красивый интерьер, но в конечном счете их будет интересовать в первую очередь качество блюд, которое напрямую зависит от правильно подобранного и грамотно расположенного оборудования.
Основные принципы выбора кухонной техники:
Меню определяет оборудование – сначала разрабатывается концепция блюд, затем подбирается соответствующая техника. Например, пароконвектоматы значительно расширяют кулинарные возможности.
Надежность и эргономика – следует выбирать оборудование с хорошими эксплуатационными характеристиками и интуитивно понятным управлением.
Подготовка персонала – если техника имеет сложное управление, необходимо убедиться, что сотрудники готовы с ней работать.
Что касается интерьера, его разработку лучше поручить профессиональным дизайнерам – только они смогут создать по-настоящему эффектное и функциональное пространство.
При создании технологического проекта важно учитывать не только пожелания владельца и дизайнера, но и предпочтения целевой аудитории.
Важное замечание: разработку технологического проекта могут осуществлять только лицензированные организации. Открытие ресторана без утвержденного проекта невозможно – контролирующие органы вправе запретить деятельность заведения.
Грамотный подход к проектированию – это залог успешного запуска и беспроблемной работы вашего ресторана в будущем.